Ask A Question

Przewidywany czas realizacji: 3-6 miesięcy
Gwarancja konstrukcyjna: 100 lat
Model:
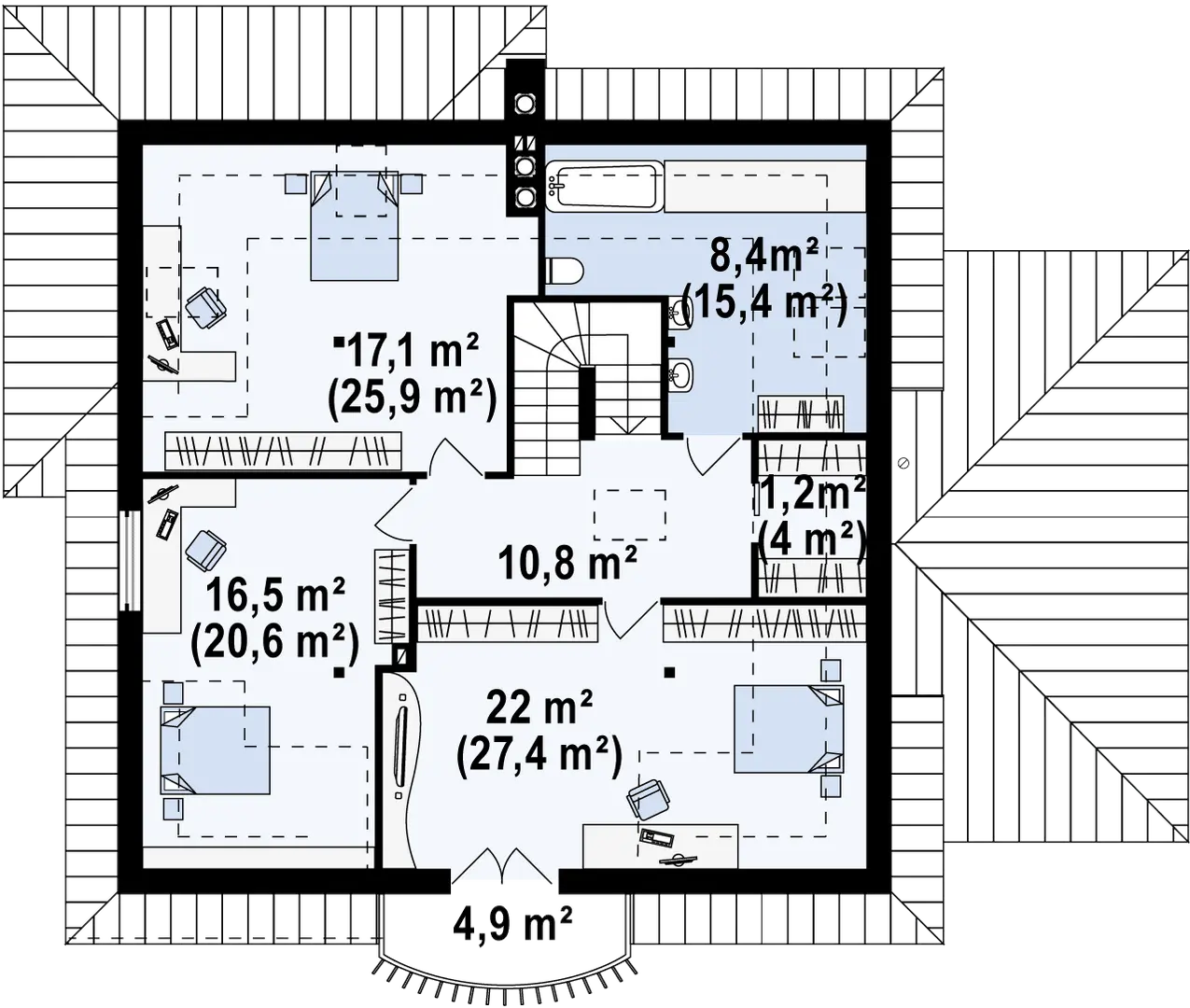
Z109
Wykonawca:
Mossfield
Projekt:
Z500
Kategorie:
Tagi:
Przejrzyj podobne projekty
Trzy proste kroki od wyboru modelu po odbiór kluczy.
Pomagamy wybrać projekt dopasowany do potrzeb i przeprowadzamy przez formalności.
Prefabrykacja elementów, montaż na działce i prace wykończeniowe zgodnie z harmonogramem.
Końcowe odbiory, przekazanie dokumentacji i kluczy – dom gotowy do zamieszkania.
Standardowy czas realizacji zależy od modelu i zakresu prac, zwykle od 3 do 6 miesięcy.
Konstrukcja oparta jest o prefabrykowany szkielet stalowy zapewniający precyzję i trwałość.
Warstwowa przegroda z MGO, XPS i wełną mineralną gwarantuje wysoką energooszczędnośći dobrą izolację termiczną.
Tak, realizujemy kompleksowo – od fundamentu po wykończenie wnętrz.
Tak. Przygotowujemy kompletny zestaw dokumentów i pozostajemy w kontakcie z urzędem do momentu uzyskania decyzji.
Najczęściej: projekt architektoniczno‑budowlany, oświadczenie o prawie do dysponowania nieruchomością, mapa do celów projektowych, warunki przyłączy oraz wymagane uzgodnienia branżowe.
Tak. Wykonujemy adaptację projektu, w tym dostosowanie posadowienia, usytuowania na działce i niezbędne uzgodnienia lokalne.
W takim przypadku pomagamy uzyskać decyzję o warunkach zabudowy (WZ) oraz kompletujemy wymagane uzgodnienia.
Możemy przygotować wnioski i dokumentację do operatorów. Samo wykonanie przyłączy realizujemy według ustaleń – przez nas lub Twojego wykonawcę.
Tak. Współpracujemy ze sprawdzonymi kierownikami budowy, którzy prowadzą dziennik i nadzorują kluczowe etapy inwestycji.
Płatności dzielimy na etapy: podpis umowy, prefabrykacja, montaż oraz odbiór końcowy.
Zapewniamy gwarancję producenta na konstrukcję i elementy wykończenia zgodnie z umową.
Zostaw dane – oddzwonimy w 24 godziny.
Domy Mossfield powstają w technologii prefabrykacji, łączącej precyzję fabryczną z komfortem tradycyjnego budownictwa. Produkcja w kontrolowanych warunkach gwarantuje jakość, szczelność i energooszczędność, a montaż na działce trwa zaledwie kilka dni.

Łączymy rzemiosło i normy klasycznego budownictwa z precyzją produkcji off-site, zaawansowaną kontrolą jakości i optymalizacją kosztów. Efekt to domy tworzone szybciej, dokładniej i bez niespodzianek — innowacja zderza się z tradycją, by dostarczyć trwałość, komfort i przewidywalną cenę.
Słuchamy, doradzamy i prowadzimy Cię przez każdy etap, byś mógł zamieszkać w miejscu, które naprawdę pasuje do Ciebie. Z troską o każdy detal tworzymy dom, w którym od pierwszego dnia czujesz się jak u siebie.
Nasz zespół doradców chętnie odpowie na pytania, pomoże dobrać model i przygotuje wycenę.